Природа в деталях. Эстетика в каждом сезоне.
Сад задуман как живописная симфония ароматов, цвета и структуры, объединяющая пейзажную естественность с тонкой декоративностью. В его основе лежит идея природной элегантности, где буйство цветения сочетается с уравновешивающим фоном зрелых деревьев.
Этот сад с элементами русской усадьбы.
Волнистые формы, пышные, но немного «растрёпанные» посадки
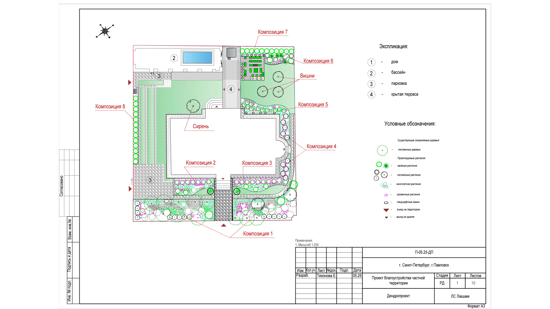
ОБ ОБЪЕКТЕ
- Тип: Денрологический проект частной территории
- Регион: Санкт-Петербург
- Стиль: Современный, пейзажный
- Площадь: 15000
- Год: 2025
Флора
Всего растений3459














